8514/A

@EF7F.ADF - IBM Display Adapter 8514/A 
CEF7F.ADF - Init file for @EF7F.ADF 
8514/A Base Card
8514/A Daughter Card
   Memory Enable Jumper
Explanation of 8514/A functionality   (to IBM)
What Was 8514/A For?
8514/A Capabilities
   Only 16 Colors with Memory Expansion
   Memory enable/disable jumper on the 8514-card.
   Error Code / Adapter RAM-Module replacement
8514/A Monitor
   Horizontal and Vertical Frequencies used by 8514/A Monitor
   Adjust Focus For Use With XGA-2 Card
   Power Supply Components
   Results of Rapid Mode Switching



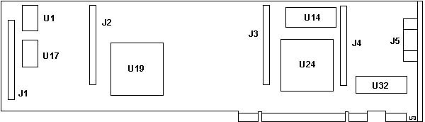
8514/A Adapter

 
J1-J4 44 pin headers
J5 HDD15Video port
U1 44.9 MHz osc
U14 INMOS IMSG171S-50
U17 25.17500 MHz osc
U19 1888554ESD
U24 1888589ESD
U32 75X8070

8514/A Video Memory Card

I'm not going to waste time scanning this. All chips are NEC D41264C-12.



This entire segment is from snide comments uttered by Peter Wendt on the PS/2 newsgroup

Memory enable/disable jumper on the 8514-card.
From Peter
   This is one of the rare jumpers on a MCA-card: it sits between the two cards on the 8514-daughter card. If you pull out the card from your computer and look at it from the underside (where the MCA-connector is). Turn it so the blue 'handle' at the left and the video-connector to the right side. Then look between the two cards.
   On the left there's a blue connector (one of 4) between the two cards. To the right is a small silver square - the crystal oscillator. Just right to this oscillator is the jumper visible. It consists out of three pins. To activate the additional memory it must cover the middle pin and the left (to the oscillator). The right pin must be free and visible. Ed. Memory installed, jumper pins towards J1, memory not installed, jumper pins towards J2.
   If it is set this way and if diagnostic doesn't give any error ... hmm ... it is probably not supported from the board.    To change the setting of this jumper you will have to separate the daughter-board from the 8514A-base card. Not easy, watch out not to damage the connectors.

What Was 8514/A For?
From Peter
   "8514" was originally a video standard introduced by IBM for host-based graphic systems. It is a *vectorized* standard - and the only "native bit-mapped mode" of this card is 1024 x 768 / 256 colors, which requires 1MB VRAM.
   The disadvantage is the low vertical refresh rate of 43.5Hz (which IBM euphemistically called "88Hz Interlaced Mode"). Very flickery.
   "8514" standard includes a particular API (Application Programming Interface), which loads with the operating systems and enables application to use the cards graphic processor. This now supports line-draw, fill-patterns, polygons etc. - whatever vectorized graphic needs ... like for example AutoCad.
   You *might* use the card - but if you are used to XGA- or XGA-2 or SVGA you will find it rather limited and causing pain in the eyes on the longer run.
   BTW: it has no native text- or low-resolution graphics mode. It is a AVE-card - means: it uses the Auxiliary Video Extension on the MCA-bus and "vampirizes" the Base Video system (VGA or XGA) to display text and 640x480 graphics. It is not a "stand-alone" video-card, it always needs a base-video to co-exist with.

8514/A Capabilities
   8514 is a video standard, 1024 X 768, 43.5 Hz, interlaced.

  If your 8514 card has the memory filled on the daughtercard, it has 1.5 MB of memory and will run 256 colours, if those memory sockets are empty it has 0.5 MB and will run 16 colours at that specification.
   All early PS/2s have VGA on the motherboard.  Accordingly,  when that card is installed and you're running VGA, it's generated on the MB and the card is just passing it through to the monitor.  It would seem that the card is capable of VGA.
   Obviously you can run a third party monitor that'll run 43.5Hz with an 8514 card.  The thing to do, though, is get an IBM 8514 monitor and run _it with that card.  They're running at from $5 or $15, that's for a very nice 16" monitor running 1024 X 768, now they're giving away 16"  1024 X 768 monitors, can you imagine.  8514 being a standard, every OS has drivers, I think.
   I've run 8514 with an IBM 8514 monitor for 10 years now.  It runs very well indeed.
   I dunno, I've never run anything else except VGA, 8514 is 1987 technology and it might be slow for some things or something, but I haven't seen anything like that at all.  I've seen it said that 43.5 Hz is slow enough, that some individuals' eyes are fine enough, that they see the refresh, perhaps under flourescent lights, bothering them intolerably.  I'm talking about home use, not a professional multimedia movie shop here, the latter knows to use a hot Turtle Beach card and never mind this baloney.
   I do know that, um, third party interests badmouthed 8514 to promote SVGA, a horrid non-standard, and sell a hundred million SVGA adapters and monitors.  That's when that came about.  That's called electronic publishing. 
   An IBM 8514 monitor also runs XGA and XGA-2, both newer 1024 X 768 video standards.
   OK then, 8514/A adapters are capable of 8514, a slightly older 1024 X 768 standard that works very well indeed.

Only 16 Colors with Memory Expansion
   I´ve a problem with a 8514/a card and memory expansion installed in it.I use 8512-002 monitor  and my machine is 8580-071 with onboard VGA-controller.
 When I connect the monitor to onboard-VGA I can get 640x480 in 16 colors vhich is O.K with 256kB display memory.If I connect the monitor with 8514/a card I get again only 16 colors.1 MB display memory should get me at least 256 colors on 640x480.The jumper on 8514/a card is correctly set.The ADF file of 8514/a is installed.

Response-
   The IBM 8514 adapter does not generate VGA.  It does generate 1024 X 768 8514, and that's all.  The memory on that adapter, which totals 1.5 MB incidentally, applies strictly to the generation of 8514.  With the original 512K memory you'd get 16 colours of 8514, and it's the 256colours of _8514 that you'd get with the 1.5 MB.
   Every (early) PS/2 generates 16 colour VGA using 256K on the _planar.  When you connect your monitor to the 8514 adapter and run VGA, that VGA is generated on the planar and the 8514 adapter simply passes that through to the monitor. That's why you're getting only VGA with 16 colours no matter what you do with the 8514 adapter.

I don't know the 8512 monitor and assume it's VGA.

   Offhand, you can do one of two things.  First, you could run VGA.  Then you might as well take out the 8514 adapter because it isn't doing anything, and connect the monitor to the planar.
   Second and best, you could get an 8514 monitor, install the 8514 drivers and run the system on the 8514 adapter with 1024 X 768, 256 colours.



Error Code / Adapter RAM-Module replacement
Error Code
Module No.
Error Code
Module No.
 007440XX
31
007460XX
16
 007441XX
30
007461XX
27
 007442XX
29
007462XX
26
 007443XX
28
007463XX
25
 007444XX
22
007464XX
24
 007445XX
21
007465XX
23
 007446XX
18
007466XX
20
 007447XX
17
007467XX
19
 007448XX
32
007468XX
15
 007449XX
14
007469XX
11
 007450XX
13
007470XX
10
 007451XX
12
007471XX
9
 007452XX
6
007472XX
8
 007453XX
5
007473XX
7
 007454XX
2
007474XX
4
 007455XX
1
007475XX
3


8514/A Monitor
From Peter
   The 8514 does not have the sync circuitry to do horizontal deflection at 35khz.  Although it may be fudged a bit, if you're willing.  It's happy only at 31.5khz/60hz/70hz (VGA/XGA), and 38khz/43.5hz interlaced (IIRC).
   Both XGA and XGA-2 adapters run an IBM 8514 monitor very nicely at 1024 X 768 at 43.5Hz (I) - according to the 8514-specs and according to the values passed in XGA$DMQS for the XGA-2.

   The 8514 monitor will fall out of sync at 800 x 600. It is not specified for this resolution. I tried that .. and the monitor made a fuzzy picture (coloured lines) for about 20 seconds before the power supply shut down. Takes him about 2 minutes to recover before it could be used at normal modes again.

Horizontal and Vertical Frequencies used by the 8514/A Monitor
From Don Hills (hang on!)
Horizontal and vertical frequencies are as follows:
640 x 350  640 x 400  640 x 480  720 x 350  720 x 400  1024 x 760
 70/31.5    70/31.5    60/31.5    70/31.5    70/31.5    43.5/35.5

Maximum recommended pel (dot clock) rate: 46.5 MHz.
The mode to be used is selected by altering the polarity of the horizontal and vertical sync pulses.

V+ H+ = 350 line mode
V+ H- = 400 line mode
V- H- = 480 line mode
V+ H- = 768 line mode

Going back the other way, there are 4 ID lines from the monitor to the video card. Monitor type is signalled by various combinations of signals on these lines: 0 (ground), 1 (5V), H (Horizontal sync) and V (Vertical sync).

8514 = ID bits 1010

If you wish, I can go into detail on the exact timing specs for sync and video signals- blanking, sync width, front / back porch etc.



Adjust Focus For Use With XGA-2 Card
>I'm trying to get an 8514 to work on my 8595 with xga2 but it seems to be out of focus. Is there an internal adjustment to sort this out ?

From Mike McKean Sr.
Hi Nick
   There is an adjustment for focus on the flyback transformer. Look at the picture tube and find the red wire attached to the suction cup and follow it down to the place where it comes from. That will be the flyback transformer. Located on the side of the flyback transformer are two adjustments. the upper one is for focus and the lower one is for adjusting screen voltage. Adjust the upper one for clearest picture. 

!!!!!!!CAUTION!!!!!CAUTION!!!!!!!CAUTION!!!!
   That red wire carries over 25,000 volts to drive the picture tube!!!!!! Stay AWAY from the suction cup on the picture tube!!!!!! If you are not experienced in working on video monitors with cathode ray tubes (picture tube) then DON'T open the monitor..take it to someone who is qualified to service it!


Power Supply Components
Warning! High Voltages exist within monitors! I take NO responsibility for ANY of your actions if YOU open the case! For the cost of an 8514 monitor, throw it away and get another.
   The following is for educational purposes only! If you do not know how to safely work on high voltage devices, this IS NOT the place to start! High voltages are not tolerant of mistakes. They do not "understand" that you are curious, or that you'd never do THAT again....

From Peter
Uigh ... ! Yeah - they were easy to kill off. The power supply was pretty unstable.

C825 47uf 16v
C810 22uf 35v
C832 22uf 25v (or 100u 10v, running change)
C864 470uf 6.3v
C865 10uf 50v

Replace all those in the power supply, and you'll almost never have another problem with an 8514.  The power supplies were the weakest part of them.



Results of Rapid Mode Switching
From Peter
   One of my team mates killed his 8514 by switching between DOS fullscreen and 1024 Win 3.1 resolution during editing a text file .... [switch] clickety-click - DOS [switch] clickety-clack-whirrr - Windows [switch] clickety-click - DOS [switch] WHACK ... flash on the screen ... Power LED went dark - monitor gone.

   Comes over to my desk and asked me what went wrong.  We disassembled the monitor (early models with security TORX) and found the main switching transistor in the power supply blown. Took us about 2 hours to get it fixed - and the monitor never was the same again it was before. Showed tendencies to start "oscillating" when the background changes from white to black and back again. Took the monitor about 10 seconds until the picture came to rest again. 

Video Main Page

9595 Main Page